Appartement de 52 m² à VILLEURBANNE
- Référence : BASILIC
- Type de bien : appartement
- Nombre de pièces(s) : 2
- Localisation : VILLEURBANNE
Spécial investisseur – Grand T2 au cœur de Villeurbanne ! – Fanny DEMARIA et l’agence Corneille Saint-Marc Transactions ont le plaisir de vous présenter ce spacieux appartement de type T2 loué, de près de 52,75 m², idéalement situé sur Villeurbanne, à 10 minutes à pieds du métro Gratte ciel !
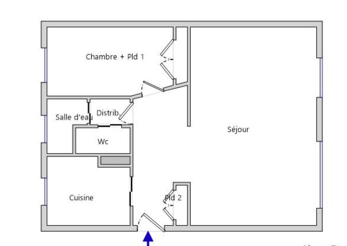
Vous trouverez dans cet appartement situé au 4ème étage et dernier étage sans ascenseur : un grand salon/salle à manger, une cuisine indépendante, une chambre, une salle d’eau et un WC séparé.
L’appartement est vendu loué. Le loyer s’élève à 655 € (dont 20 € de charges).
Cet appartement est traversant et lumineux.
Une cave est vendue avec ce bien.
La copropriété a voté en 2025 la réalisation d’un plan pluriannuel de travaux et d’un DPE collectif. Des travaux d’isolation par l’extérieur et d’isolation de la toiture sont envisagés sur les prochaines années (prévoir environ 10K€). Ces travaux qui n’ont pas encore été votés seront donc à la charge des futurs propriétaires. Pour une plus grande efficacité, il faudra étudier le changement des fenêtres en simple vitrage bois. Cet immeuble de 1959 n’aura bientôt plus rien à envier aux copropriétés récentes sur le plan énergétique !
A noter tout de même que le DPE qui apparaît aujourd’hui en G basculera en F à compter du 1er janvier 2026 avec les nouvelles normes de calcul.
Les + de ce bien : Bel emplacement, appartement spacieux, rénovation importante de la copropriété à venir, bien traversant et lumineux, nombreux rangements, porte blindée, chauffage individuel, aucune anomalie électrique, parquet massif, cave, taxe foncière de 640 €.
Visite virtuelle sur demande.
Energie : G (F à compter du 1/01/2026) / GES : C
Montant des dépenses théoriques annuelles de l’ensemble des usages énergétiques entre 2030 € et 2780 €.
Honoraires à la charge du vendeur compris.
Bien soumis au régime de la copropriété.
Nombre de lots : 30
Montant annuel des charges appelées : 646 €, soit 54 €/mois.
Procédure en cours : Oui
Les informations sur les risques auxquels ce bien est exposé sont disponibles sur le site Géorisques : www.georisques.gouv.fr
Ce bien correspond à votre projet immobilier ? Pour plus d’informations, contacter Fanny DEMARIA de l’agence CORNEILLE SAINT-MARC TRANSACTIONS au 06 52 79 61 52 (Agent commercial immobilier – RSAC de Vienne n°850 199 506). Le bien est soumis au statut de la copropriété , la copropriété comporte 30 lots , la quote-part budget prévisionnel (dépenses courantes) est de 646,00 euros/an.
Honoraires à la charge du vendeur. Logement à consommation énergétique excessive. Montant estimé des dépenses annuelles d’énergie pour un usage standard : entre 2 030 et 2 780 euros. Prix moyens des énergies indexés en 2023.

179 Avenue Jean Jaurès 69150 Décines

T3 arrêt Décines Centre



14H00 à 17H00

206 Avenue Jean Jaurès 69150 Décines

T3 arrêt Décines Centre



9H30 à 12H00 et de 14H00 à 18H30